Tussen de Bogen 60
1013 JB Amsterdam

Telefoon : +31 (0)20 419 6266
Mail:diekman@xs4all.nl
Instagram @diekmanlandschapsarchitecten

© 2022 Diekman LANDSCHAPSARCHITECTEN | DREAMERSTEPS webdevelopment

top

Hellingbaan in de Banne Amsterdam Noord

  /    /    /    /  Hellingbaan in de Banne Amsterdam Noord

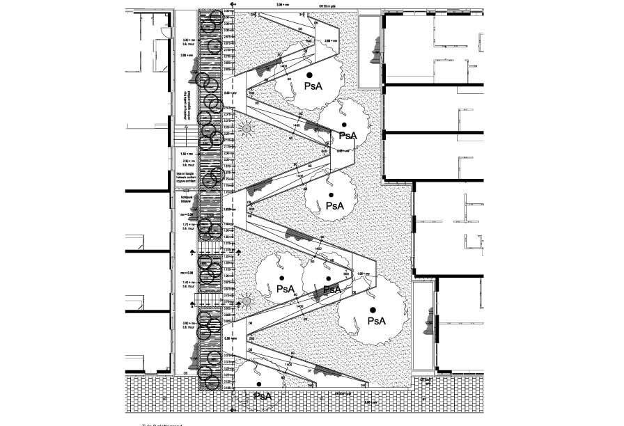
AM ontwikkeling heeft Amsterdam Noord, aan het Banneplein in de Banne, een woningbouw strip ontwikkeld van KOW architecten. Deze strip bestaat uit 5 appartementen gebouwen. Tussen de appartementen liggen vier brede groene gebieden, de Groene Longen, welke de verbinding vormen tussen de IJdoornlaan en het Banneplein in Amsterdam. Deze woningbouw vormt samen met de verbindingsstroken een onderdeel van het plan om de Banne op te knappen.

In de verbindingsstroken is een hoogteverschil van 3 meter opgelost. Dit is het hoogteverschil tussen de IJdoornlaan en het Banneplein. In drie van de vier verbindingsstroken wordt het hoogteverschil door middel van een trap overbrugt. De trappen liggen in het gras waar Prunussen in staan. De vierde verbindingsstrook is invalide toegankelijk. Door deze strook loopt een zigzaggende hellingbaan. Voor de valide mensen ligt hier een flauwe trap naast. De trappen en de hellingbaan vormen het esthetische element in de verbindingsstroken. In deze stroken worden de zo karakteristieke groene, weidse grasvlaktes van de Banne naar binnen getrokken.

 

Opdrachtgever

AM ontwikkeling en Rochdale